各位师生:
为消除北京市内地下燃气管线隐患,确保本地区地下管网运行安全,根据北京市政府统一部署,将对使用年限较长的燃气管线进行改造。目前,beat365唯一官方网站教学区燃气管线使用年限已达30年以上,被纳入此次改造范围。为了不影响开学季工作,最大限度减少因地面开槽造成交通不便的影响,改造施工时间定为7月10日至8月20日,由北京市燃气公司进行施工,共分六个阶段进行。我们将加强统筹协调,尽量缩短工期,尽快恢复良好的校园秩序。
施工期间,尽量选取路侧步道砖或绿地进行开槽施工,以减少对教学区车辆与行人的出行影响,个别路段需要破柏油路面,车辆与行人需要绕行。总务处将全力督促施工单位加强施工安全管理,并监督施工单位在施工后期的路面回填恢复工作,保证被开槽路面回填打压后恢复原样。
请师生们关注学校施工通知,并请远离施工围挡,车辆、行人注意避开占道施工路段,在施工路段附近行走时注意安全。
现将分段施工时间、具体路段、占用道路情况及通行路线通知如下:
第一阶段:7月10日——7月18日:
(1)24号楼小门→快乐食间餐厅→学生公寓2号楼东侧(靠路南侧步道砖施工),快乐食间餐厅→德园餐厅西侧→清真餐厅南侧(靠路东侧施工),以上路段施工不需要封路,施工道路两旁禁止停车,车辆、行人可正常通行,可正常进出操场;
(2)跃进厅北侧停车场(步道砖)→跃进厅西侧(跃进厅北门),车辆、行人需绕道至5号楼前通行(通行路线用紫色箭头示意),该路段施工不影响跃进厅地下停车场的车辆进出。

第二阶段:7月19日——7月25日:
(1)学生公寓8号楼西南角(靠路东侧步道砖施工)→学生公寓7号楼门前(靠路南侧步道砖施工),该路段车辆需绕道行驶,可走学生公寓4号楼前干道、学生公寓5号楼前干道(通行路线用紫色箭头示意),不影响行人通行;
(2)学生公寓2号楼东侧→调压箱(靠操场西侧绿化带施工),车辆、行人可正常通行。

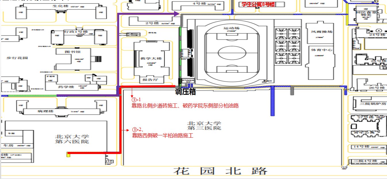
第三阶段:7月26日——8月1日:
(1)调压箱→药学楼前(靠逸夫楼南侧步道砖施工,破药学院东侧部分柏油路),该段占道施工,车辆、行人可绕行逸夫楼西侧及学生公寓2号楼北侧(通行路线用紫色箭头示意);
(2)病理楼东侧(靠路西侧施工)→第六医院东门(靠路西侧破一半柏油路施工),车辆、行人可正常通行,施工道路旁禁止停车。

第四阶段:8月2日——8月7日:
(1)病理楼→护理楼(靠路南侧绿化带施工),路旁禁止停车,车辆可正常通行,去车队的车辆需要从病理楼西侧道路行驶,不影响行人通行;
(2)护理楼→会议中心南侧和西侧(从会议中心南侧绕道施工至校西门人行闸机东侧),需要分段封路,施工方现场协调车辆通行,不影响车辆从西门出车,车辆从西门进车时,需绕环岛从北侧进校(通行路线用紫色箭头示意),不影响行人通行。

第五阶段:8月8日——8月14日:
调压箱→校区东南门(靠操场南侧步道砖施工,占用东南门车辆进出口靠西侧三分之一道路),与东南门家属区管道对接,破1处柏油路。施工期间车辆需绕行药学楼前干道出行(通行路线用紫色箭头示意),不影响校区东南门车辆与行人通行。

第六阶段:8月15日——8月20日:
操场南侧→北医三院北门,需破1处柏油路,需要封路,车辆可从药学院前干道绕行(通行路线用紫色箭头示意),不影响行人通行。

特此通知,因施工给您带来的不便敬请谅解。
施工联系人:董正红,电话:13439429936
beat365唯一官方网站总务处
2023年7月7日