关于医药科技园区综合楼施工占用场地的通知

各位老师、同学:

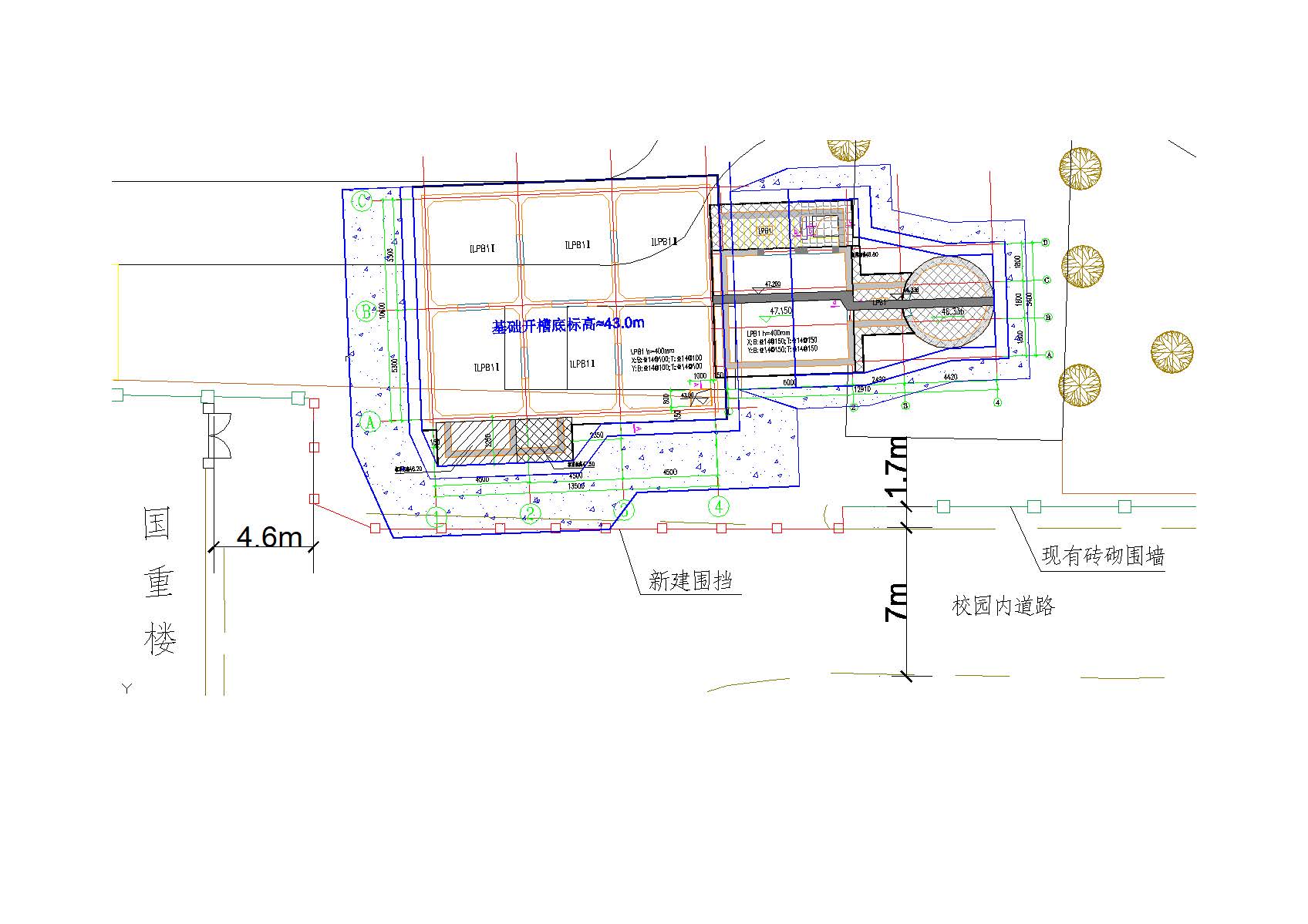
因beat365唯一官方网站医药科技园区综合楼配套项目室外工程施工,需占用国重楼门口停车位及部分道路。届时将封闭该区域,具体范围详见附图。请在上述范围内停车的师生规划好停车,施工带来不便,敬请谅解。

计划封闭施工时间:2020年10月10日-2021年1月施工完毕。


基建工程处    

2020年10月9日